Компании
РЕКОМЕНДУЕМ
Регион:
Коттеджный поселок
Rambler's Top100


Все загородные коттеджи » Новорижское шоссе » Киселево

Коттеджный поселок Киселево


Продажи данного поселка на первичном рынке завершены!
Основная информация о поселке Киселево
Коттеджный поселок Киселево
Официальное название Коттеджный поселок
Киселево
Тип коттеджного поселка Бизнес
Направление Новорижское
Удаление от МКАД 39 км.
Объект продажи Участок с домом
Площадь от 170 кв.м. до 560 кв.м.
Площадь участка в сотках от 3.0 до 44.0
Количество участков 57
Материал дома клееный брус, монолит
Готовность и сроки сдачи Поселок сдан. Продажи на первичном рынке завершены.
Электричество да
Водопровод Центральный
Канализация централизованная
Газопровод Магистральный
Телекоммуникации Да
| Основная информация | Расположение | Инфраструктура | Ген. План | Проекты |
Расширенная информация о поселке Киселево

О поселке:

На высоком берегу Малой Истры, при впадении в нее небольшого ручья расположена маленькая деревня Киселево, известная еще с XVI века. В окрестностях деревни, окруженных бескрайними лесами, по сей день сохраняется ощущение уединенности и покоя.

Коттеджный поселок «Киселево» состоит из двух связанных между собой лесных территорий – обособленной территории «Клаб» с рукотворными ручьями и запрудами на каждом участке и территории «Кантри» с широким выбором домов и участков.

При этом транспортная проходимость Новой Риги позволяет пользоваться не только инфраструктурой близлежащих коттеджных поселков, но и всего Новорижского направления.

Территория Country

 

На территории «Кантри», с трех сторон окруженной лесом, можно выбрать участки от 12 до 25 соток. Многоуровневый ландшафт территории позволил при проектировании поселка «Киселево» достичь эффекта уединенности каждого домовладения.

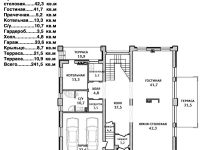
Для застройки территории «Кантри» покупателям предлагаются разработанные специально для поселка «Киселево» проекты домов в едином архитектурном стиле площадью от 150 до 311 кв.м.

Здесь же расположится административное здание и другие объекты внутренней инфраструктуры поселка, которые смогут обеспечить жителям коттеджного поселка «Киселево» комфортное круглогодичное проживание.

 

просмотров: 63741

Фотогалерея
Коттеджный поселок Киселево, коттеджи, Новорижское шоссе
Коттеджный поселок Киселево, коттеджи, Новорижское шоссе Коттеджный поселок Киселево, коттеджи, Новорижское шоссе Коттеджный поселок Киселево, коттеджи, Новорижское шоссе
Коттеджный поселок Киселево, коттеджи, Новорижское шоссе Коттеджный поселок Киселево, коттеджи, Новорижское шоссе Коттеджный поселок Киселево, коттеджи, Новорижское шоссе
Коттеджный поселок Киселево, коттеджи, Новорижское шоссе Коттеджный поселок Киселево, коттеджи, Новорижское шоссе Коттеджный поселок Киселево, коттеджи, Новорижское шоссе
Коттеджный поселок Киселево, коттеджи, Новорижское шоссе Коттеджный поселок Киселево, коттеджи, Новорижское шоссе Коттеджный поселок Киселево, коттеджи, Новорижское шоссе
Коттеджный поселок Киселево, коттеджи, Новорижское шоссе Коттеджный поселок Киселево, коттеджи, Новорижское шоссе Коттеджный поселок Киселево, коттеджи, Новорижское шоссе
Коттеджный поселок Киселево, коттеджи, Новорижское шоссе Коттеджный поселок Киселево, коттеджи, Новорижское шоссе Коттеджный поселок Киселево, коттеджи, Новорижское шоссе
Коттеджный поселок Киселево, коттеджи, Новорижское шоссе Коттеджный поселок Киселево, коттеджи, Новорижское шоссе
Оставить запрос по поводу Коттеджного поселка Киселево
Кого спросить*:   
Ваш e-mail*:   
Ваш телефон*:   
Ваш вопрос*:   
Проверочный код*:   

       
Также рекомендуем посмотреть другие коттеджные поселки подмосковья
Коттеджный поселок Нахабино Кантри Клаб Коттеджный поселок Нахабино Кантри Клаб
Волоколамское, 17 км.
Коттеджный поселок Некрасовские дачи Коттеджный поселок Некрасовские дачи
Дмитровское, Рогачевское, 20 км.
Коттеджный поселок Устье Коттеджный поселок Устье
Дмитровское, Ярославское, 138 км.
Коттеджный поселок Тимонино Коттеджный поселок Тимонино
Киевское, 25 км.
Коттеджный поселок Романовские дачи Коттеджный поселок Романовские дачи
Симферопольское, 89 км.
Коттеджный поселок Рузская гавань Коттеджный поселок Рузская гавань
Новорижское, 99 км.
Коттеджный поселок Пятницкий Коттеджный поселок Пятницкий
Ленинградское, 11 км.
Коттеджный поселок Европа Коттеджный поселок Европа
Ильинское, Новорижское, Рублево-Успенское, 22 км.

Лучшие коттеджные поселки Подмосковья. Загородная недвижимость